Getting Started
Provides initial procedures for getting started with the device.
Components
| Cable Tie x6 | ||
| Enclosure (ENCR-10) | Earth Cable | |
| Fixing Screw x4 | PVC Anchor x4 | Fixing screws for the device x6 |
| Ferrite Core | Terminal | Fixing screws for the power supply cable |
Info
- Components may vary according to the installation environment.
-
The ENCR-10 components include screws for housing fixation, screws for product fixation, and screws for power device connection. Use each screw correctly according to its purpose.
-
Fixing screws for the enclosure (diameter: 4 mm, length: 25 mm) x4
-
Fixing screws for the device (diameter: 3 mm, length: 5 mm) x6
-
Fixing screws for the power supply cable (diameter: 3 mm, length: 8 mm) x1
-
- The backup battery is sold separately.
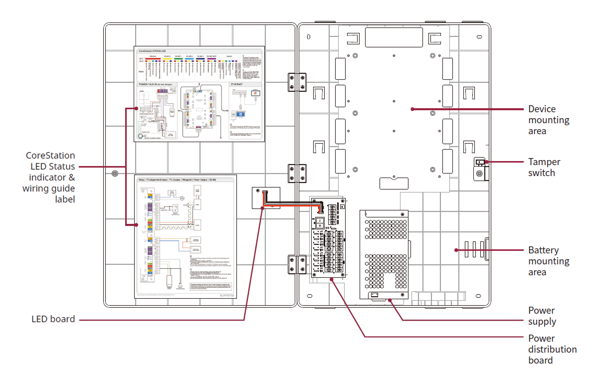
Name and function of each part
Outside

Inside

Info
LED status indicator and wiring guide labels are attached to the enclosure for CoreStation. For details on the LED status indicators and wiring of each device, refer to the respective product guide.